REQUEST A TOUR If you would like to see this home without being there in person, select the "Virtual Tour" option and your agent will contact you to discuss available opportunities.
In-PersonVirtual Tour

$ 6,700,000
Est. payment | /mo
8 Sqft Lot
$ 6,700,000
Est. payment | /mo
8 Sqft Lot
Key Details
Property Type Vacant Land
Listing Status Active Under Contract
Purchase Type For Sale
MLS Listing ID ML81956842
HOA Y/N No
Lot Size 8 Sqft
Property Description
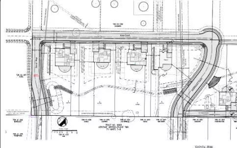
The Davenport Real Estate Group is pleased to present this development opportunity on 8 acres for 7 estate homes on approx. 1+ acre each. With an adjoining separate opportunity for an additional 3 lots permitted By Right on 3.8 acres. A wonderful quiet location, nestled in the scenic and charming neighborhood of Morgan Hill - surrounded by large estate homes and top rated elementary schools with easy access to 101 and the trendy downtown Morgan Hill. This 8.34-acre parcel presents an exciting prospect for developers, builders, investors, or individual investors seeking to design 7 estate homes in an exclusive residential community. The site will be delivered with an approved tentative map. It has the convenience of nearby shopping and downtown amenities, while feeling like you are in the country. Just minutes from downtown shopping, schools, parks, hiking, golf club, and Anderson Lake, this location is ready for development. Additional parcel: ML81976054
Location
State CA
County Santa Clara
Area 699 - Not Defined
Zoning A
Interior
Fireplace No
Exterior
Fence None
View Y/N Yes
View Hills
Building
Sewer Public Sewer
Schools
Elementary Schools Other
High Schools Live Oak
School District Other
Others
Tax ID 72802003000
Special Listing Condition Standard

Listed by Danielle Davenport KW Bay Area Estates





